BPM
bauherrenservice24-Logo
Projekt : Umbau Einfamilienhaus/1. Bauabschnitt
Bauherr : privat
Ort : Unstrut-Hainich-Kreis
Baujahr : 2007
Fertigstellung : 2007
Leistungsphasen : 1 - 8
Nutzung : Wohnhaus


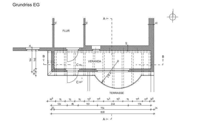
Planungsauftrag ist die Sanierung eines in kombinierter Massiv-/Fachwerkbauweise errichteten, teilunterkellerten Einfamilienhauses im ländlichen Raum. In einem ersten Bauabschnitt wurde die Südfassade durch Beseitigung des Zementputzes, Überarbeitung der Tragkonstruktion und Aufbringen einer flächendeckenden, außenliegenden Wärmedämmung grundhaft saniert.
Der vorhandene Massivanbau wurde durch den fachgerechten Rückbau der baumedizinisch bedenklichen Dacheindeckung und der Anordnung einer gedämmten und gesperrten Holzbalkendecke einer zusätzlichen Nutzung als Tragkonstruktion eines vom Obergeschoss erschlossenen Balkones zugeführt.