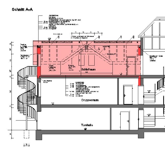
Die gut ausgelastete Kindertageseinrichtung des Ortes bedurfte zusätzlicher Nutzfläche zur Anordnung eines Schlafraumes.
Zur Minimierung der Bau- und Erschließungskosten und wegen der nur im begrenzten Maße zur Verfügung stehenden Grundstücksfläche wurde dies durch die Aufstockung des vorhandenen Anbaues realisiert. Dazu war die statische Ertüchtigung der vorhandenen Stahlbetondecke durch Erhöhung der oberen Druckzone erforderlich. Weitere konstruktive Besonderheit ist die Anordnung zweier traufseitiger Giebel, wodurch der gesamte Dachraum ohne störende Stuhlsäulen ausgebildet werden konnte und ausreichend stark belichtet wird.
Die Anordnung einer außenliegenden Fluchttreppe für den Brand- und Havariefall erfolgte so, dass sie auch den Gruppenraum im 1. Obergeschoss absichern kann und wenig Bauraum in Anspruch nimmt.
|