BPM
bauherrenservice24-Logo

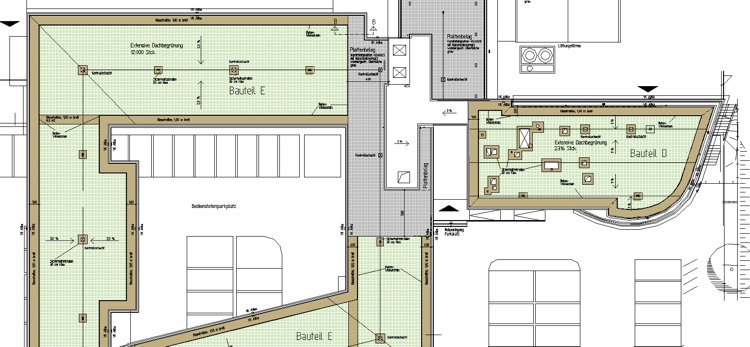
Extensive Dachbegrünung Verwaltungsgebäude

Bauherr : Freistaat Thüringen
Ort : Unstrut-Hainich-Kreis
Planungszeitraum : 2000 - 2003
Gesamtfläche : ca. 3.000 m2
Gebäudehöhe: bis 18,0 m

Ziel der Anordnung einer Dachbegrünung auf den Hauptgebäuden des neu zu errichtenden Verwaltungskomplexes war die Reduzierung der Abflusswerte des Oberflächenwassers durch Rückhaltung und teilweise Verdunstung. Diese war wegen der stark unterdimensionierten kommunalen Abwassernetze des Plangebietes eine der vorrangigsten Planungsaufgaben.
Gewählt wurde eine einfache Extensivbegrünung aus Sedum-Teppich, die infolge ihrer geringen Aufbauhöhe wenig Auflasten und damit geringe statische Mehraufwendungen verursacht und dennoch die gestellten Planungsziele ausreichend gut umsetzt. Die Dachflächen des an einem Hochpunkt zu errichtenden, mehrgeschossigen Gebäudekomplexes können von benachbarten Grundstücken nicht eingesehen werden, wodurch die gestalterisch begrenzten Möglichkeiten einer Rasen-Sedum-Mischung kein Problem darstellen.